歡迎來到東莞市新科教學設備有限公司網站!
新科教學設備
東莞市新科教學設備有限公司
您的位置: 首頁 > 新聞資訊
新聞資訊

關于校園文化建設的必要性

如何進行校園文化建設

青少年科技活動中心

校園科技館科技實驗室設計方案

常見多種實驗室分析儀器對測試品的要求

校園實驗室規范化管理 日常管理制度基本要求

實驗室設備的功能區域設計

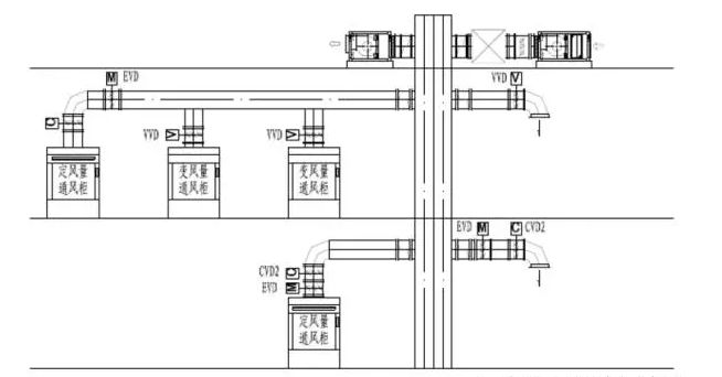
實驗室通風柜的排風方式

怎么挑選實驗室通風柜?

實驗室通風柜的分類匯總

實驗室通風柜擺放在什么地方?

什么是通用技術實踐室?

書法教育的意義

書法教育的意義

書法教育日益受到關注。一方面是國家對學校書法教學的強調,如廣東省2017年將書法列入中小學生必修課,另一方面書法教育從學校延伸至社會各個層面,成為全民、全社會關注的問題。...
查看詳情
聯系方式 /CONTACT
東莞市新科教學設備有限公司

地 址:樟木頭鎮文裕路12號
電 話:0769-87715958
傳 真:0769-87712932
 業務咨詢:蔡經理—13249983413  
商務部楊先生:點擊這里給我發消息
全國服務熱線:400-883-1331

核心產品·推薦
products
東莞市新科教學設備有限公司 成立于1998年,是一家專業從事現代科學實驗室裝備規劃、設計、研發、制造、安裝以及售后服務于一體的高新技術企業。公司成立十多年以來,一直致力于科學實驗室裝備事業的研發與制造,主要服務于教育系統與企業單位,涵蓋中小學基礎教育、高等教育及職業技術教育領域,同時也廣泛應用于科研、檢測、化工、醫療等其它行業。